#0080 【貸店舗】三宮中心街 センタープラザ2F 12.91坪 軽飲食可!!

#0080 【貸店舗】三宮中心街 センタープラザ2F 12.91坪 軽飲食可!!
兵庫県神戸市中央区三宮町1丁目9-1
阪急神戸線 「神戸三宮」駅 徒歩3分
センタープラザ2F
担当者からのおすすめポイント

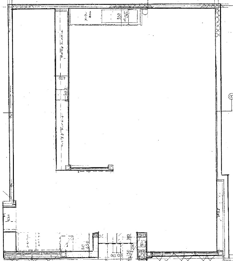
★軽飲食可能な約13坪のお店★
三宮センタープラザ2階に軽飲食可能な店舗の募集です。もちろん、物販・サービス・事務所としてもお使いになれます。阪急神戸線「神戸三宮」駅、西口から徒歩3分。歩道橋をお使いになれば、駅からお店まで傘いらずでいくことができます。現在のテナント様ははキッズスクールですが、その前までは喫茶店が営業していました。グリストラップもあります。お気軽にお問合せください!
物件詳細情報
| 賃料 | 11.0万円(税込み) |
| 管理費 | |
| 共益費 | 45,408円 |
| 築年月 | |
| 所在階 | 2階/地上22階地下2建て |
| 間取り | |
| 面積 | 42.68平方メートル |
| 敷金 | 3ヶ月分 |
| 解約引 | 1ヶ月分 |
| 礼金 | なし |
| その他 | 軽飲食可・現状渡し |
| 住所 | 兵庫県神戸市中央区三宮町1丁目 |
| 交通 | 阪急神戸線 「神戸三宮」駅 徒歩3分 JR神戸線 「三宮」駅 徒歩5分 |




